ID CP2779420

Duplex Parter 3-dormitoare-96Mp-pozitie excelenta-Ghiroda

ID CP2779420

159,800 €

Casă / Vilă cu 4 camere de vânzare
Ghiroda
96 mp
2025

Rex Imobiliare va propune spre vanzare Duplex Parter intr-un cartier linistit, in apropierea Universitatii de Medicina din Ghiroda

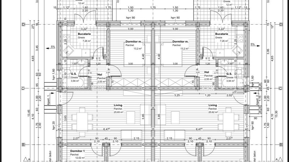
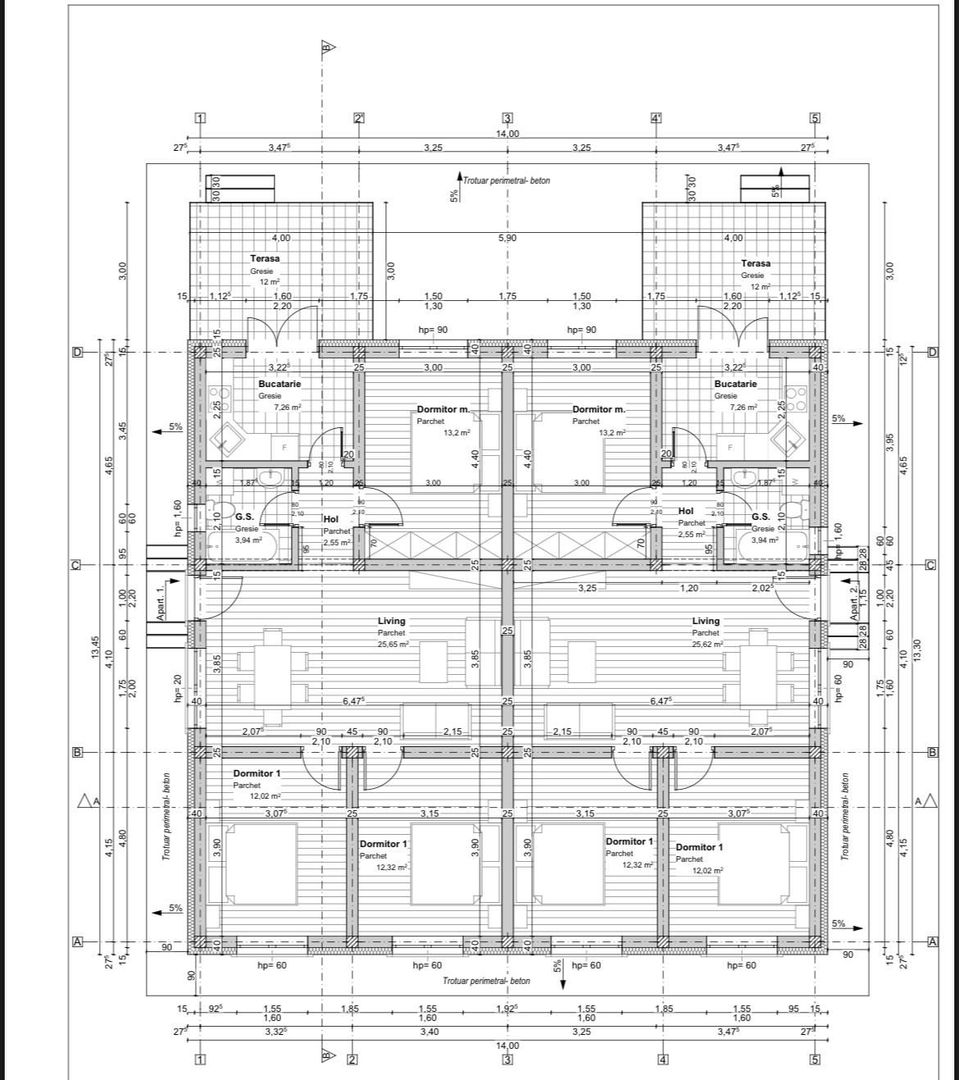
In suprafata utila de 96 Mp, amplasata pe un teren de 289 Mp, duplexul este compartimentat astfel:

Parter:

-hol acces

-living+zona de luat masa

-3 dormitoare

-1 baie

-terasa

Utilitati:gaz, curent, apa, canal.

Incalzirea se realizeaza prin pardoseala, centrala proprie.

Detalii constructie:

-structura beton si caramida

-izolatie exterioara polistiren EPS80 15cm

-tamplarie PVC, cu geam tripan

-acoperis tigla

-curte amenajata cu pavaj

Pret solicitat:159.800 euro la cheie.

Clientul are posibilitatea de a-si alege in limita unui buget:gresie, parchet, usi, mobilier baie.

Pentru vizionare contacteaza-ma,disponibilitate si in weekend.

Razvan 0765773068

Citește mai mult

  • Număr camere
    4
  • Dormitoare
    3
  • Număr bucătării
    1
  • Număr băi
    1
  • Geam la baie
    Da
  • Disponibilitate
    Imediat
  • Tip casă
    Duplex
  • Stare interior
    Finisat modern
  • Anul finisării
    2026
  • Suprafață utilă
    96 mp
  • Suprafață construită
    128 mp
  • Suprafață teren
    249 mp
  • Acoperiș
    Țiglă
  • Stadiu construcție
    La roșu
  • An construcție
    2025
  • Construcție nouă
    Da
  • Tip construcție
    Cărămidă
  • Are pod
    Da

Facilități

Acoperiș
Apă
Bucătărie închisă
Canalizare
CATV
Centrală proprie
Curent
Ferestre PVC
Gaz
Geamuri tripan
Glet
Gresie
Iluminat stradal
Încălzire prin pardoseală
Internet
Izolație exterioară
Mijloace de transport în comun
Parchet
Străzi asfaltate
Telefon
Ușă intrare PVC
Uși interior PVC
Vopsea lavabilă
Razvan Lobonea
Agent Imobiliar

0765773068


Solicită chiar acum o vizionare
Telefon
Sună acum Solicită vizionare
Necesare:

Site-ul nu poate funcționa corect fără aceste cookie-uri. Vezi cookie-urile

Statistică:

Strângem statistici anonime despre voi, vizitatorii unici, pentru a vă îmbunătăți experiența dumneavoastră. Vezi cookie-urile

Marketing:

Pentru a ne promova mai eficient serviciile noastre, folosim cookies pentru a vă identifica și a vă oferi proprietăți și servicii personalizate. Vezi cookie-urile

Acest site folosește cookies, află detalii. Alege ce tipuri de cookies dorești să permitem: